-
Eastland Concepts Ranch
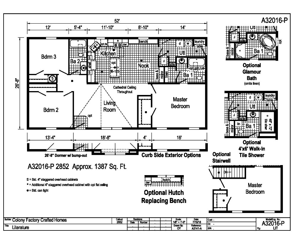
A32016-P
Available Now
-
3
Beds
2
Baths
1,387
sq.ft
Standards & Features
-
Bathrooms
- 1.6 Gallon Per Flush Elongated Toilets
- 60” Tub/Showers
- Anti-Scald Faucets in Tub/Shower
- China Stool, Tank and Lid
- Empire Faucets
- Framed Mirrors
- Lighted Vent Fan in Each Bath
- Shower Drain with Removable Strainer
-
Bedrooms
- Egress Window Each Bedroom
- Switched Light in All Walk-In Closets
- Switched Recept
- Vinyl Wall Coverings in all Bedrooms
- Wire Shelving in Wardrobes
-
Cabinetry
- 30” Staggered Height Overhead Cabinets
- 36” High Bath Vanities
- Base and Center Shelves in Base Cabinets
- Base Shelf in Vanities
- Brushed Nickel Cabinet Hardware
- Concealed Cabinet Hinges
- Crown Moulding on Kitchen Cabinets
- Deluxe Roller Guide Drawer System
- Evermore Custom Cabinetry (KCMA Certified)
- Laminate Countertops
- Lined Overhead Cabinets
- MDF Mission Style Cabinet Doors
-
Construction
- 20# Roof Load
- 2x6 Exterior Walls on 16” Centers**
- 2x6 Transverse Floor – 12/14 wide
- 2x8 Transverse Floor – 16 wide
- Recessed Frame Design
- ¾” T&G OSB Floor Decking
-
Exterior
- 10” Eaves – Ranch Homes (28/32)
- 12” Gable End Overhang
- 12” Louvered Shutters on Front Door Side
- 34x80 Steel 6-Panel Rear Door
- 38x80 Steel 6-Panel Front Door
- Mulled Vinyl Insulated Windows w/Grids
- One GFI-Protected Exterior Receptacle
- Patina Lantern Light at Front Door
- Patina Square Lantern at Rear Door
- Ridgevent Roof Ventilation System
- Sheathing Board Under Siding
- Shingle Roof with 4” Eaves - Single Section (14/16)
- Vinyl Dutch Lap Siding
-
Flooring
- Choice of various Styles of Textured Carpet
- DiamondFlor – Floor Coverings
- Rebond Carpet Pad with Tackstrip Carpet Installation
- Standard 16 oz 10 Choices Available
- Upgrade Styles 20 Choices Available
-
Insulation
- R-14 Fiberglass in Floor
- R-19 Fiberglass in Walls
- R-25 Avg Blown in Ceiling
-
Interior
- 1” Mini Blinds Throughout
- 7’6” Sidewall Height
- Cathedral Ceiling Throughout
- Floor Mount Door Stops
- LED Flush Mount Ceiling Lights
- Metal Interior Passage Sets
- Mortise Hinges
- Pre-Hung Door Jambs
- Smoke Detectors With Battery Back-Up
- Stipple Ceiling
- Valance Window Treatments
- Vinyl Wall Coverings on Gypsum Walls
- White 6-Panel 30” Passage Doors
- Wire Shelving in Guest Closet
-
Kitchen
- 1 USB Receptacle
- 18 Cubic Foot, No-Frost Refrigerator
- 30” Deluxe Gas Range
- Empire Gooseneck Faucet
- Power Range Hood with Light
- Stainless Steel Sink - 33x19x7
-
Utilities
- 100 AMP Electrical Service
- 30 Gallon Electric Water Heater with Pan
- Air Conditioning Thermostat With 5-Wires
- Air Exchanger System for Furnace
- Aluminum Heat Ducts
- Copper Wiring Throughout
- Gas Furnace White 6-Panel Door w/Grill
- In-Floor Cross-Over Heating System
- Main Water Line Shut-Off Valve
- Plumbed and Wired for Washer
- Vented and Wired for Dryer